Сдается квартира м2 по ул. . Ленина 70 за 22999 руб.

Квартира в Томске
Цена 22 999 р.
Адрес . Ленина, 70
Кол-во комнат Однокомнатная
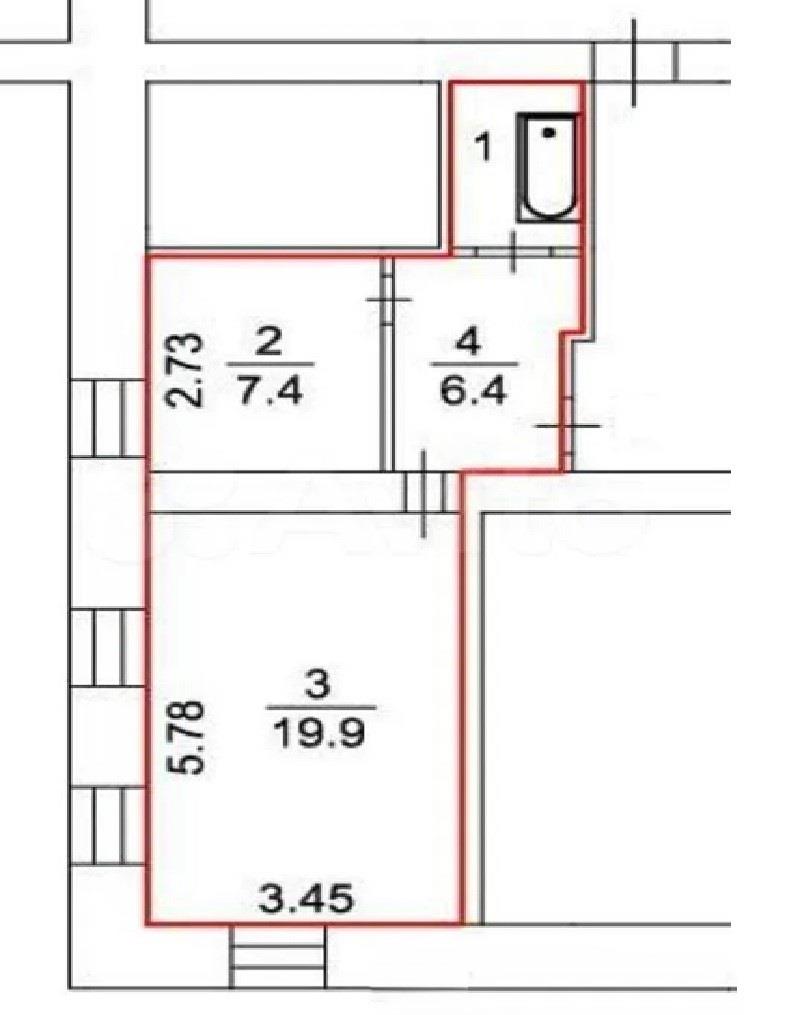
ЭКСКЛЮЗИВНОЕ ПРЕДЛОЖЕНИЕ В ИСТОРИЧЕСКОМ ЦЕНТРЕ ТОМСКА!<br /> Сдается уютная 1-комнатная квартира в самом сердце города, по адресу: проспект Ленина, 70. Это идеальный вариант для тех, кто ценит комфорт, историю и развитую инфраструктуру.<br /> Цена: 22 999 рублей в месяц + счётчики.<br /> ОСНОВНЫЕ ПРЕИМУЩЕСТВА:<br /> • Расположение мечты: дом находится на главной улице города. Вся инфраструктура в шаговой доступности: магазины, кафе, театры, музеи, остановки общественного транспорта, а также рядом ТЮЗ (Театр юного зрителя).<br /> • Надежный кирпичный дом: здание 1900 года постройки, признанное памятником архитектуры, с толстыми кирпичными стенами, что гарантирует отличную шумоизоляцию и сохранение тепла. В 2016 году проводился капитальный ремонт и благоустройство прилегающей территории.<br /> • Идеальный этаж: квартира расположена на комфортном 3-м этаже.<br /> • Оптимальная площадь: общая площадь квартиры составляет 37,3 м² – достаточно пространства для комфортного проживания одного человека или молодой пары.<br /> • Тишина и спокойствие: несмотря на центральное расположение, дом имеет всего 19 квартир, что создает камерную и спокойную атмосферу для жильцов.<br /> • Большая парковка свободная за шлагбаумом.<br /> Это не просто квартира, это возможность жить в месте с душой и историей по привлекательной цене.<br /> Не упустите свой шанс! Звоните прямо сейчас, чтобы договориться о просмотре!
Объявление № 23973267
Дата подачи:
20 марта 2026 г. 23:08
Дата обновления:
20 марта 2026 г. 23:08
Просмотров 4 Хотите продать быстрее?

Продавец
Агентство недвижимости:
Сергей
email: 205.000@mail.ru
Показать номер телефона
Пожаловаться
Комментарии:
Добавить